

Wiederaufbau eines Zweifamilienhauses in Oberstaufen (Allgäu)
Bearbeitungszeitraum: 2017—2018





Wiederaufbau eines Zweifamilienhauses in Oberstaufen (Allgäu)
Bearbeitungszeitraum: 2017-2018
bearbeitete Leistungsphasen gem. HOAI: 1 - 8
Kennwerte: NF: 210 qm, BGF: 294 qm, BRI: 2058 cbm













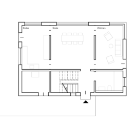
Wiederaufbau eines Zweifamilienhauses in Oberstaufen (Allgäu)
Bearbeitungszeitraum: 2017—2018






Wiederaufbau eines Zweifamilienhauses in Oberstaufen (Allgäu)
Bearbeitungszeitraum: 2017-2018
bearbeitete Leistungsphasen gem. HOAI: 1 - 8
Kennwerte: NF: 210 qm, BGF: 294 qm, BRI: 2058 cbm












©2024
Kallert Architekten
Architekturbüro
Körnerstraße 12 | 48151 Münster | Germany





©2024
Kallert Architekten
Architekturbüro
Körnerstraße 12 | 48151 Münster | Germany





| Projekt | Ort | |
|---|---|---|
| Freianlagen für den Neubau Trauerhalle und Betriebshof, Hauptfriedhof an der Sickingmühler Straße, 2022 | Marl | |
| Umbau und Erweiterung eines Einfamilienhauses, 2022 | Dinslaken | |
| Erweiterung und Umnutzung Mehrfamilienhaus, 2022 | Münster | |
| Erweiterung und Umnutzung eines denkmalgeschützen Wohnhauses, 2022 | Münster | |
| Neubau Einfamilienhaus, 2022 | Bielefeld | |
| Umbau Bahnhof Löhne zu einem dritten Ort, 2022 Realisierungswettbewerb | Löhne | in Kooperation mit Wolfgang Riegger |
| Erweiterung eines Wohnhauses und Umbau im Bestand, 2022 | Gießen | |
| Neubau Gewerbehof, 2021 | Dortmund | |
| Neubau eines Einfamilienhauses, 2021 Studie | Oberhausen | |
| KiTa Schwanenstraße und Wohnungsbau, 2021 Realisierungswettbewerb | Solingen | in Kooperation mit Sabina Hauers Architektur, PS-Landschaft |
| Umnutzung und Erweiterung historische Kalkmühle als Wohngebäude, 2020 | Bietigheim-Bissingen | |
| Neubau Trauerhalle und Betriebshof, Hauptfriedhof an der Sickingmühler Straße, 2020 | Marl | |
| Neubau Logistikzentrum Zeche Scharnhorst, 2020 | Dortmund | |
| Neubau einer 2-zügigen Grundschule im Oxford-Quartier, 2020 Realisierungswettbewerb | Münster | in Kooperation mit Sabina Hauers Architektur, PS-Landschaft |
| Erweiterung der Mosaik Grundschule, 2019 Realisierungswettbewerb | Münster | |
| Umbau und Erweiterung Mehrfamilienhauses, 2019 | Oberhausen | |
| Wohnquartier Reichsstraße, 2019 städtebaulicher Wettbewerb | Herne | |
| Neubau Kindertagesstätte, 2019 Realisierungswettbewerb | Quakenbrück | |
| Umbau und Sanierung Wohnhaus, 2019 | Münster | |
| Rathauserweiterung und Kita, 2019 Realisierungswettbewerb | Stemwede | |
| Holzmarktstraße 5-15, Neubau von Einzelhandelsflächen und betreutes Wohnen mit Tagespflegeeinrichtung, 2019 Realisierungswettbewerb | Haldensleben | |
| Umnutzung und Erweiterung Hofstelle – Moos, 2018 | Heiligenberg | |
| Wiederaufbau Mehrfamilienhaus, 2018 | Stiefenhofen | |
| Neubau der Sekundarschule Bethel, 2018 Realisierungswettbewerb | Bielefeld | |
| Neubau Ganztagsbereich der Grundschule Borchen, 2018 Realisierungswettbewerb | Borchen | |
| Projekt | Ort | |
|---|---|---|
| Freianlagen für den Neubau Trauerhalle und Betriebshof, Hauptfriedhof an der Sickingmühler Straße, 2022 | Marl | |
| Umbau und Erweiterung eines Einfamilienhauses, 2022 | Dinslaken | |
| Erweiterung und Umnutzung Mehrfamilienhaus, 2022 | Münster | |
| Erweiterung und Umnutzung eines denkmalgeschützen Wohnhauses, 2022 | Münster | |
| Neubau Einfamilienhaus, 2022 | Bielefeld | |
| Umbau Bahnhof Löhne zu einem dritten Ort, 2022 Realisierungswettbewerb | Löhne | in Kooperation mit Wolfgang Riegger |
| Erweiterung eines Wohnhauses und Umbau im Bestand, 2022 | Gießen | |
| Neubau Gewerbehof, 2021 | Dortmund | |
| Neubau eines Einfamilienhauses, 2021 | Oberhausen | |
| KiTa Schwanenstraße und Wohnungsbau, 2021 Realisierungswettbewerb | Solingen | in Kooperation mit Sabina Hauers Architektur, PS-Landschaft |
| Umnutzung und Erweiterung historische Kalkmühle als Wohngebäude, 2020 | Bietigheim-Bissingen | |
| Neubau Trauerhalle und Betriebshof, Hauptfriedhof an der Sickingmühler Straße, 2020 | Marl | |
| Neubau Logistikzentrum Zeche Scharnhorst, 2020 | Dortmund | |
| Neubau einer 2-zügigen Grundschule im Oxford-Quartier, 2020 Realisierungswettbewerb | Münster | in Kooperation mit Sabina Hauers Architektur, PS-Landschaft |
| Erweiterung der Mosaik Grundschule, 2019 Realisierungswettbewerb | Münster | |
| Umbau und Erweiterung Mehrfamilienhauses, 2019 | Oberhausen | |
| Wohnquartier Reichsstraße, 2019 städtebaulicher Wettbewerb | Herne | |
| Neubau Kindertagesstätte, 2019 Realisierungswettbewerb | Quakenbrück | |
| Umbau und Sanierung Wohnhaus, 2019 | Münster | |
| Rathauserweiterung und Kita, 2019 Realisierungswettbewerb | Stemwede | |
| Holzmarktstraße 5-15, Neubau von Einzelhandelsflächen und betreutes Wohnen mit Tagespflegeeinrichtung, 2019 Realisierungswettbewerb | Haldensleben | |
| Umnutzung und Erweiterung Hofstelle – Moos, 2018 | Heiligenberg | |
| Wiederaufbau Mehrfamilienhaus, 2018 | Stiefenhofen | |
| Neubau der Sekundarschule Bethel, 2018 Realisierungswettbewerb | Bielefeld | |
| Neubau Ganztagsbereich der Grundschule Borchen, 2018 Realisierungswettbewerb | Borchen | |